Colmenar Viejo quiere homenajear al talento científico español, y en especial al de las mujeres, por eso, en la última Junta de Gobierno se ha aprobado nombrar las calles del nuevo barrio Cerca Tejera con algunas de las mujeres científicas más influyentes de los últimos años.
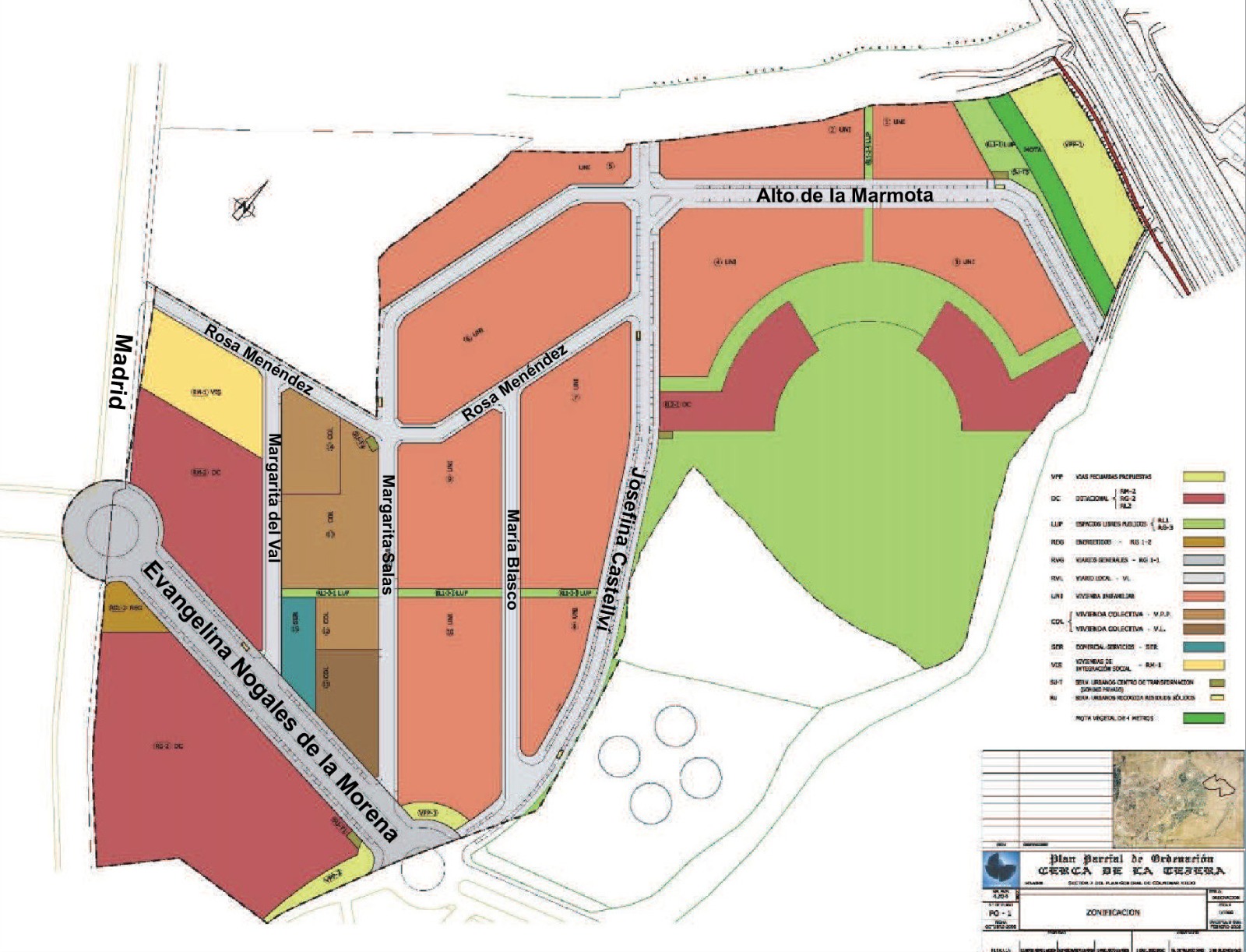
Situado al norte del municipio, la calle principal de este nuevo barrio llevará el nombre de la colmenareña Evengelina Nogales de la Morena, la cual ha sido nombrada hija predilecta del municipio hace poco, catedrática de Bioquímica, Biofísica y Biología Estructural en el departamento de Biología Molecular y Celular de la Universidad de California en Berkeley, investigadora del Instituto Médico Howard Hughes, e investigadora senior del Lawrence Berkeley National Laboratory de Californi; dirige su propio laboratorio en la Universidad de California y es líder en el uso de criomicroscopía electrónica para ver los componentes de las células a nivel atómico. En la actualidad contribuye en la lucha contra el SARS-CoV-2, tratando de obtener la estructura de los componentes críticos de la COVID-19 para que la industria farmacéutica pueda atacarlo directamente.
Nogales ya tenía una calle en su ciudad natal, bautizada como Doctora Nogales, pero el Ayuntamiento ha decidido cederle un nuevo espacio, mucho más importante, y con su nombre al completo, y ha renombrado la antigua vía con el nombre del Doctor Javier de la Serna, también muy importante para los colmenareños.

La colmenareña Evangelina Nogales de la Morena pondrá nombre a la vía principal del barrio de Cerca Tejera
Las calles perpendiculares a la de Evangelina Nogales de la Morena, tendrán el nombre de Magarita del Val, viróloga e investigadora del CSIC en el Centro de Biología Molecular Severo Ochoa, y Coordinadora de la Plataforma Salud Global del CSIC de investigación sobre el coronavirus; Margarita Salas, científica bioquímica e investigadora, pionera y referente en España, inició el desarrollo de la biología molecular en este país; María Blasco, bióloga molecular, directora del Centro Nacional de Investigaciones Oncológicas; y Josefina Castellví, oceanógrafa, la primera mujer en dirigir una base científica en la Antártida. El cierre norte del sector toma el nombre de Rosa Menéndez, química experta en materiales de carbono para aplicaciones en energía y medio ambiente, primera mujer que preside el CSIC desde su creación en 1939.
“En esta pandemia hemos aprendido mucho y tomado conciencia de la importancia de muchas cosas pero, sin duda, del papel que la ciencia desempeña para poder seguir desarrollándonos e incluso sobreviviendo. Por eso, las primeras calles a las que tenemos oportunidad de dar nombre son para la ciencia y en concreto para mujeres relevantes en ámbitos tan diferentes como la lucha contra el cáncer, la virología, la biología molecular, la oceanografía…", explica en un comunicado el alcalde Jorge García Díaz.